HiTech House

 

contemporary house plans, design ideas, and high tech


HiTech-House

Plan for a two-story house for a sloping plot in a modern style

  • Slanted and curved rooflines give the exterior of this two-story house plan a modern edge, while a raised seam metal roof and stone accents complete the design.
  • High ceilings in the foyer continue through to the great room, offering a feeling of grandeur, and an open kitchen and adjoining dining room are oriented to take advantage of any rearward views.
  • Large service areas allow the home to accommodate any size of the family.
  • French doors lead to the first-floor master bedroom, which boasts a fireplace and private deck. The luxurious ensuite features an oversized shower with two heads, dual sinks, and a large walk-in closet.
  • A quiet den is located just a few steps up from the foyer and includes a fireplace.
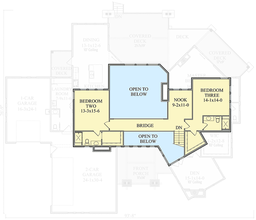
  • Each with their own full bath, two bedrooms reside upstairs, along with a nook awaiting the homeowner's finishing touch.
  • A spacious lower level features a family room with a wet bar, two bedrooms that include full bathrooms, an exercise room, and a sizable outdoor patio.

#

The vast space of the house allows its owners to experience the complete thrill and comfort of living in it. Thanks to frame technology, the construction of the house is reliable and durable, and modern insulation will ensure sound energy efficiency. When choosing the foundation design for this house - you should pay serious attention to the results of geological surveys. For facade finishing, select materials that are used in your climate zone. Later on, the maintenance of the house will pleasantly surprise the homeowner.

Floor Plans


Plan Details

Floors: 2 Bedrooms: 3 Garage Type: 3 car garage Total Heated Area: 3598 sq.ft 1st Floor: 2621 sq.ft 2nd Floor — 977 sq.ft Width — 93′6″ Depth — 76′9″
Roof — hip, shed Bathrooms: 4 Wall framing — wood frame Cladding: wood siding, stucco, stone Foundation type — Basement Outdoor living: Deck, Porch Windows: Max Ridge Height 24′11″

OUR RECOMMENDATIONS

The modern house in Suffolk England on a slope lot and an original gable roof

Plan of an aerated concrete house with a hip roof and a built-in garage in a modern style

Contemporary two-storey house plan with a living room and a kitchen on the second floor

We invite you to visit our other site, EPLAN.HOUSE where you will find 4,000 selected house plans in various styles from around the world, as well as recommendations for building a house.

Hitech-house © copyright 2017