HiTech House

 

contemporary house plans, design ideas, and high tech


HiTech-House

Contemporary Floor Plan with Glass Staircase and Two-Story Living Room

  • In this stunning modern four-bedroom house plan, the staircase is highlighted by floor-to-ceiling windows at the front.
  • Cube-like shapes come together to create a unique curb appeal.
#

PD-90315-2-4

There is a closet to the left, and two doors lead from the covered entrance to the vestibule. The two-story living room is open to the kitchen and dining room to the front and right, with windows overlooking the rear yard.
The back wall of the dining room opens onto a 10-foot-deep covered porch. The island, which can comfortably accommodate four people, offers casual dining.

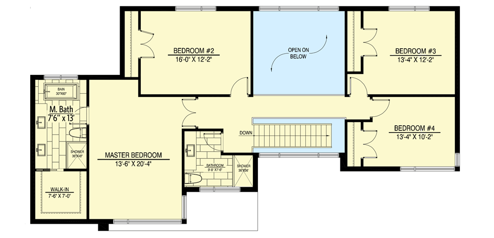
The view of the living room downstairs places bedrooms 3 and 4 to the right, away from bedroom 2 and the master bedroom. A 2-car side-loading garage completes the plan.

Floor Plans


Plan Details

Floors: 2 Bedrooms: 4 Garage Type: 2 car garage Total Heated Area: 2639 sq.ft 1st Floor: 1075 sq.ft 2nd Floor — 1563 sq.ft Width — 62′0″ Depth — 31′10″
Roof — flat Bathrooms: 2 Wall framing — wood frame Cladding: wood siding, profiled metal sheet, panels Foundation type — Basement Outdoor living: Porch Windows: panoramic windows Max Ridge Height 27′7″

OUR RECOMMENDATIONS

Modern House Plan with Large Windows and Shed Roofs

Modern two-story house plan with 6 bedrooms, sauna and study with a hip roof

Plan for a modern house with a ground floor and panoramic windows for a sloping plot

We invite you to visit our other site, EPLAN.HOUSE where you will find 4,000 selected house plans in various styles from around the world, as well as recommendations for building a house.

Hitech-house © copyright 2017