Two-story modern house in the style of high-tech with panoramic windows attracts the attention of the strict straight lines of the façade, finished with different materials, which emphasize interesting design decisions of this house.





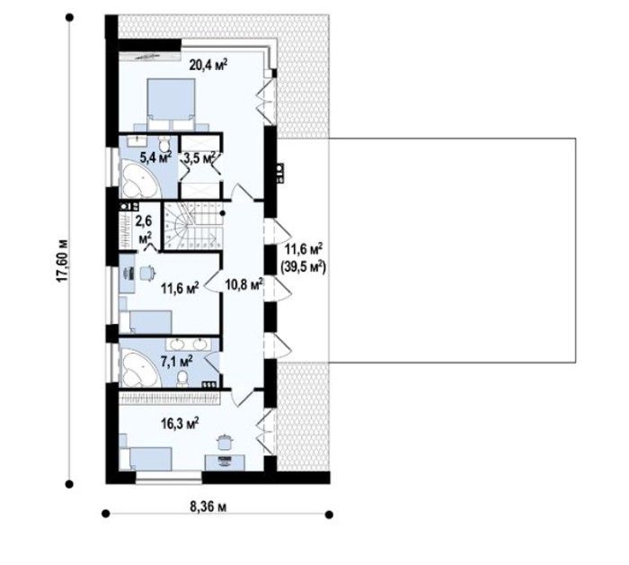
The wall construction of this house is ICF, and the roof can be built as a wood - or concrete. Thanks to the design, this house will be durable and economical to maintain. The layout of the rooms in this plan of the house is free and implies various design solutions for all tastes.
We invite you to visit our other site, EPLAN.HOUSE where you will find 4,000 selected house plans in various styles from around the world, as well as recommendations for building a house.