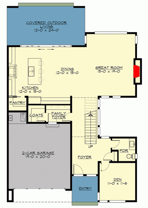
Floor: 2
Bedrooms: 4
Garage: attached garage, 2 car garage
Heated Area: 289 m2
Ground Floor Square: 117 m2
1st Floor Square: 172 m2
Width: 12.2
Depth: 18.3



























