The spacious living room and dining room border the foyer and are heavily lit with natural light. The home office is perfect for working from home, and the bedroom on this level provides a private space for guests.

Entering the home from the 3-car garage, you will enter the combined locker room and laundry room. Continue to the modern kitchen with a pantry that makes unloading groceries from the car easy.
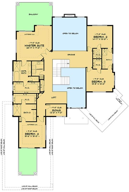
The second-floor corridor is like a bridge connecting four bedrooms, including the master bedroom with its balcony, bath with five appliances, and a walk-in closet. The second level also has a bonus room (counted in total living space) and a laundry room.
Bedroom 6 is in the basement, a recreation room and gym, and a whole sauna.









We invite you to visit our other site, EPLAN.HOUSE, where you will find 4,000 selected house plans from around the world in various styles, as well as recommendations for building a house.