HiTech House

 

contemporary house plans, design ideas, and high tech


HiTech-House

Chic Modern House Plan with a Roof Garden and Deck above the Garage

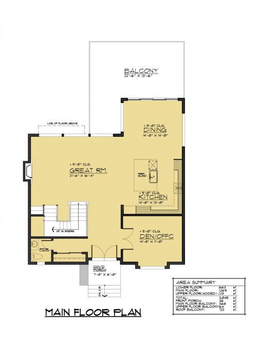
This House plan is suitable for a downsloping lot with a 2 car garage located on the rear. From the open-plan main level, you can enter the large deck above the garage.

#
  • Upon entry to the house, you will find a dressing room and home office next to the two-floor foyer.
  • The impressive kitchen with a huge island, the dining room, and the living room with a built-in fireplace all are airy and sunny.
  • The Master bedroom gives you the opportunity to met sunset from the private balcony on the upper level. There are a spacious walk-in closet and a large modern bathroom.
  • On the same level, you will find two other bedrooms and a study loft.
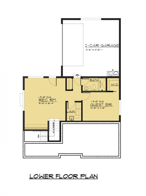
  • On the lower level, there are a two-car garage, recreation room, laundry, and a guest bedroom with a bathroom and walk-in closet.

Floor Plans


Plan Details

Floor: 2 Bedrooms: 3 Garage: 2 car garage, driveunder garage Heated Area: 229 m2 Ground Floor Square: 117 m2 1st Floor Square: 102 m2 Width: 11.6 Depth: 15.9
Roof: shed Bathrooms: 3 Max Ridge Height 9.14 Wall materials: wood frame Facade cladding: fiber-cement siding, panels Foundation: Daylight basement Outdoor Living: Balcony, 2nd Floor Deck Windows: panoramic windows, clerestory windows

OUR RECOMMENDATIONS

The Wilson's house in New Zealand from Dravitsky and Brown architects

Contemporary two-story house with a two car garage and two living rooms on the each floor

Contemporary Three Bedroom Home Plan with Screened Porch

Contemporary 2-Story House Plan with In-Law Apartment Over Garage

We invite you to visit our other site, EPLAN.HOUSE, where you will find 4,000 selected house plans from around the world in various styles, as well as recommendations for building a house.

Hitech-house © copyright 2017