Si vous êtes à la recherche d'un plan de maison moderne à construire sur un terrain en pente, cette élégante villa à deux étages avec sous-sol mérite votre attention.
Au rez-de-chaussée, d'une superficie de 87 mètres carrés, le salon lumineux, la cuisine avec coin repas, les toilettes pour invités et l'escalier droit au milieu sont compacts et agréables.

Le premier étage, d'une superficie d'environ 100 m², comprend une chambre principale chic avec un grand dressing et une salle de bains lumineuse avec douche, ainsi que deux chambres d'angle bien éclairées avec des toilettes et une douche communes. En montant l'escalier, on accède à un couloir avec un bureau d'un côté.
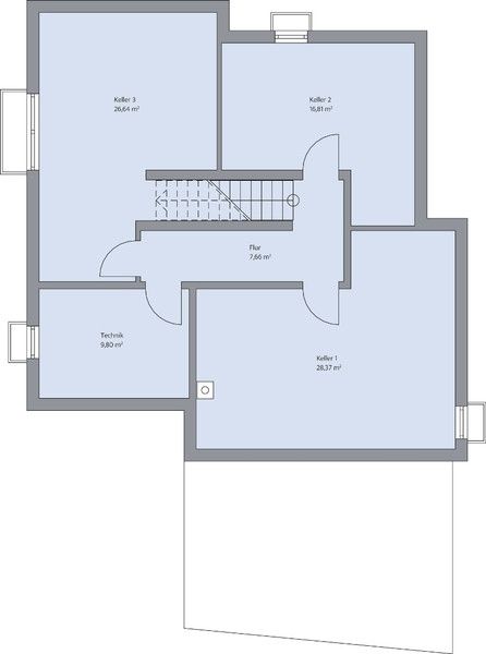
Sous l'ensemble de la maison, le sous-sol vous permet de l'utiliser comme vous le souhaitez, un bonus agréable de la part de l'architecte.
L'ensemble de l'espace de vie est bien éclairé et offre beaucoup d'espace pour l'expérimentation de la conception, grâce aux grandes baies vitrées. Le coût financier de la construction de cette maison est maigre, mais très faible pendant le fonctionnement. Si vous n'aimez pas le toit ou le matériau des murs et des finitions, notre société vous aidera à modifier et à calculer les changements, en tenant compte de tous les souhaits du constructeur.