Small modern Scandinavian ICF house plan 9x12 meters
    
	
	
        This home is perfect for both a young and an older couple. The air-locked foyer will keep out the cold, and the insulated concrete formwork (ICF) wall will keep you warm in winter and cool in summer. You won't have to worry too much about tornadoes, molds or wood bugs in an ICF home. 
 
   
    
        
    
    
    Video from our channel
    
    
        
    
    
    
               
        
                LEFT SIDE OF THE HOUSE
			  
        
           
        
                RIGHT HOUSE FACADE WITH SPLIT SHED ROOFS AND BASTARD WINDOWS
			  
        
           
        
                GREAT ROOM WITH FIREPLACE AND ACCESS TO THE DECK
			  
        
           
        
                MODERN KITCHEN-DINING ROOM WITH ACCESS TO THE COVERED DECK
			  
        
           
        
                BEDROOM 1
			  
        
           
        
                BEDROOM 2
			  
        
           
        
                SCANDINAVIAN HOUSE PLAN
			  
        
    
    
               
        
                LEFT SIDE OF THE HOUSE
			  
        
           
        
                RIGHT HOUSE FACADE WITH SPLIT SHED ROOFS AND BASTARD WINDOWS
			  
        
           
        
                GREAT ROOM WITH FIREPLACE AND ACCESS TO THE DECK
			  
        
           
        
                MODERN KITCHEN-DINING ROOM WITH ACCESS TO THE COVERED DECK
			  
        
           
        
                BEDROOM 1
			  
        
           
        
                BEDROOM 2
			  
        
           
        
                SCANDINAVIAN HOUSE PLAN
			  
        
    
        
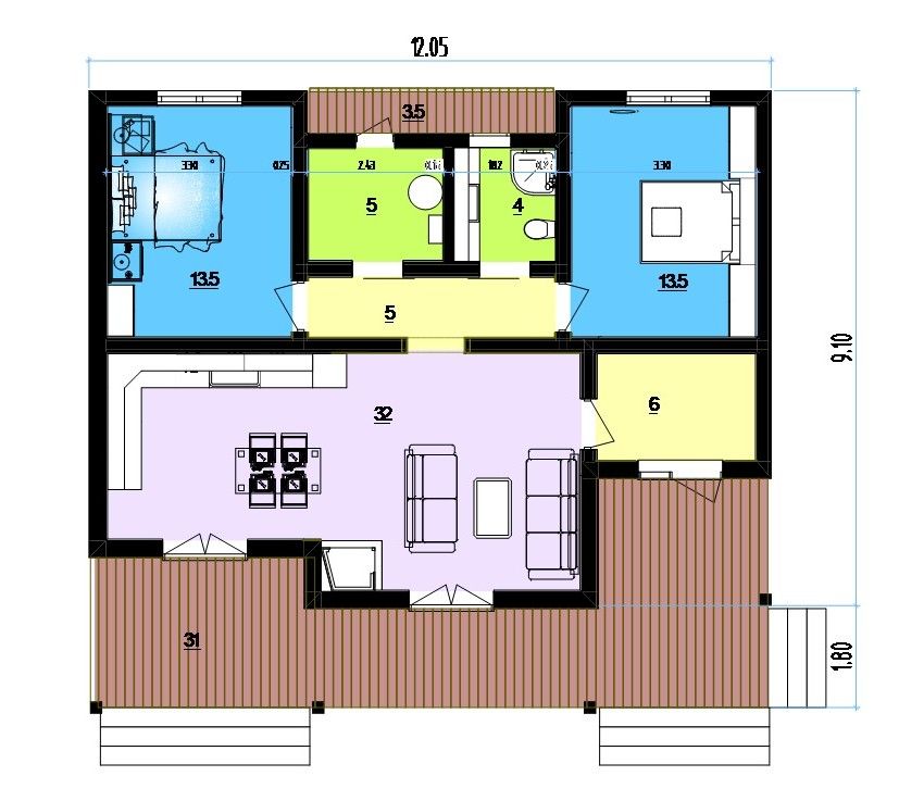
    High sloping ceilings with exposed rafters and clerestory windows create a sense of spaciousness in this small home. Both the living room and kitchen have access to a covered deck where you can place a large dining table or sofas.
Two fairly large bedrooms are located in the back of the house and are separated by a bathroom and utility room. In the utility room, you can set up a laundry room and place heating appliances. From this room you can walk out to the back porch, which will house a heat pump to save on energy costs.
     
    
     
       
            
           
		
    Floor Plans 
    
    
    Plan Details
    
    
    
	
		
		    
    
    
    Floor: 1
    
    Bedrooms:  2
    
    Garage:  
    
    Heated Area:  81 m2
    
    Ground Floor Square: 81 m2
    
    1st Floor Square:  0
    
    Width: 12
    
    Depth: 9.1
    
		 
		
			
    
    
    Roof:  gable
    
    Bathrooms:  1
    
    
    Max Ridge Height 5
    
    Wall materials:  ICF
    
    Facade cladding:  wood siding, stucco
    
    Foundation:  Slab
    
    Outdoor Living:  Deck, alfresco
    
    Windows:  large windows
    
		 
	 
 	
    
    
            
                OUR RECOMMENDATIONS
            
            
     
		
			 
					
						
							
							
						
                        2-Bedroom Barndominium Home Plan with Open Deck
			
                    
				   	         
 
		
			 
					
						
							
							
						
                        Inexpensive 4-bedroom high-tech home plan for a sloping lot
			
                    
				   	         
 
		
			 
					
						
							
							
						
                        3-Bedroom Modern Home Plan Under 200 Sq. m. for the Rear View Lot
			
                    
				   	         
 
		
			 
					
						
							
							
						
                        Modern Split Bedroom House Plan with Daylight Basement
			
                    
				   	         
 
 
    
    We invite you to visit our other site, EPLAN.HOUSE, where you will find 4,000 selected house plans from around the world in various styles, as well as recommendations for building a house.