Этот современный дом в стиле Барнхаус был спроектирован для пологого склона, чтобы тандемный гараж на 2 машины можно было разместить под основными жилыми помещениями дома.

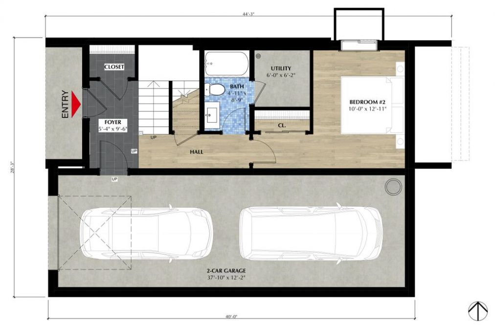
Но проект может подойти и для ровного участка. Нижний уровень предназначен для фойе, гаража, котельной и гостевой спальни с ванной, а на верхнем уровне находятся все основные жилые помещения. Из гостиной есть выход на закрытую с трех сторон террасу. Хозяйскую спальню на верхнем уровне с большими окнами, выходящими на южную сторону украшает сводчатый потолок, делающий пространство еще больше. Двускатная крыша позволяет разместить солнечные панели с необходимым наклоном.








Приглашаем посетить другой наш сайт Eplan.house, где вы найдете 4000 избранных планов домов со всего мира в различных стилях, а также рекомендации по строительству дома.