Проект двухэтажного дома с плоской крышей с 4 спальнями и гаражом на 2 машины 
    
	
	
        
	Чистые, прямые линии и совмещение смешанных материалов придают этому проекту современного дома прекрасную визуальную привлекательность. 
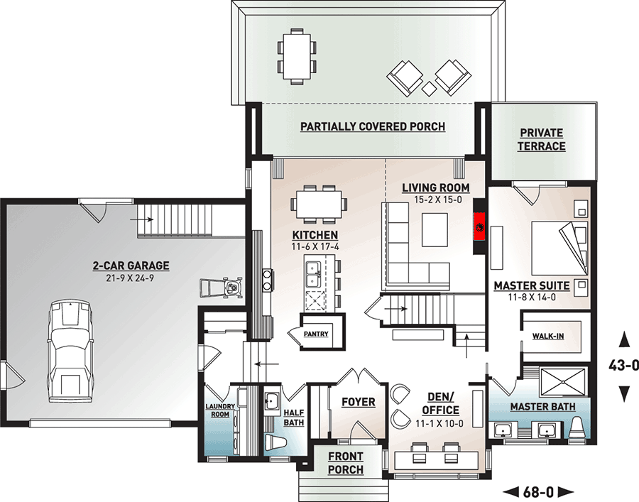
	Фойе с воздушным шлюзом удерживает холодный воздух от остальной части дома. 
	Вы можете работать из дома в уютном домашнем офисе с фасадной стороны или же зайти в главную гостиную, чтобы расслабиться с семьей. 
	Открытая планировка дает потрясающий вид в кухне, столовой и гостиной. 
	Стена из складных дверей пропускает много света и выводит на крытую заднюю веранду. 
	Хозяева дома будут жить в главной спальне на первом этаже с собственной террасой, большой гардеробной и ванной комнатой с двумя раковинами. 
	Три другие семейные спальни находятся на втором этаже, откуда из коридора с открытыми перилами открывается вид на комнаты внизу. 
	Выйдите на балкон второго этажа, чтобы подышать свежим воздухом. 
 
     
        
    
        
           
        
			Вид сзади
            
            
           
         
       
           
        
			Альтернативный фасад
            
            
           
         
       
           
        
			Альтернативный фасад, вид сзади
            
            
           
         
       
           
        
			Фото передней части дома
            
            
           
         
       
           
        
			Фото сбоку
            
            
           
         
       
           
        
			Фото задней части дома
            
            
           
         
       
           
        
			Большая гостиная совмещенная с кухней
            
            
           
         
       
           
        
			Комфортная гостиная с камином
            
            
           
         
       
           
        
			Открытая лестница
            
            
           
         
       
           
        
			Современная кухня в открытой планировке
            
            
           
         
       
           
        
			Альтернативный план
            
            
           
         
       
            
     
                
    
    
     
    Планы этажей  
    
    Детали плана 
    
    
    Дом -  2 
Спальни —   4Гараж —    встроенный гараж, гараж на 2 машины Отапливаемая площадь  197  м2 Площадь 1 этажа:  133  м2 Площадь 2 этажа:   64  м2 Ширина:   20.7 Глубина:  13.1 
    
    Крыша —   плоская 
Ванные:   2
3Материал стен —   деревяный каркас Фасадные материалы:   деревянный сайдинг, фиброцементный сайдинг Фундамент —   Подвал Открытые помещения:   Веранда, Застекленная веранда, Балкон Окна:   широкие окна, панорамные окна Высота дома  6.9 	
    
    
            
                РЕКОМЕНДУЕМ 
            
            
     
		
			 
					
						
							
							 
						 
                        Современный план дома с открытой гостиной - 380 кв. м
			
                    
				   	         
 
		
			 
					
						
							
							 
						 
                        Проект одноэтажного дома в стиле Хайтек с гаражом на две машины
			
                    
				   	         
 
		
			 
					
						
							
							 
						 
                        Гостевой дом с 3 спальнями в современном стиле
			
                    
				   	         
 
		
			 
					
						
							
							 
						 
                        Современный двухэтажный дом с плоской крышей для маленького участка
			
                    
				   	         
 
 
    Приглашаем посетить другой наш сайт Eplan.house 4000  избранных планов домов со всего мира в различных стилях, а также рекомендации по строительству дома.