HiTech House

 

современные проекты домов, дизайнерские идеи и высокие технологии


HiTech-House

Проект современного дома с панорамными окнами и цокольным этажом

  • Прямая односкатная крыша добавляет динамичности этому дому в современном стиле.

#
  • Из широкого фойе вы можете пройти прямо в L-образную зону семейной гостиной;
  • Благодаря открытой планировке, эта зона позволяет всем находиться в одном и том же пространстве во время приготовления  и приема пищи или просмотра телевизора;
  • В большую крытую открытую жилую зону можно попасть через раздвижные стеклянные двери;
  • Практичным дополнением будет семейное фойе, большой гардеробный шкаф и кладовая такого же размера;
  • Все три спальни находятся наверху, а также удобная прачечная и большая дополнительная комната;
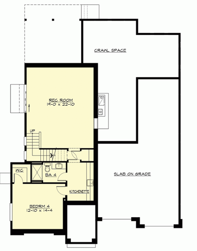
  • Завершите цокольный этаж, чтобы получить еще одну спальню и ванную комнату, мини-кухню и огромную комнату отдыха.

Планы этажей

Детали плана

Дом - 2 Спальни — 3 Гараж — гараж на 3 машины Отапливаемая площадь 302 м2 Площадь 1 этажа: 147 м2 Площадь 2 этажа: 155 м2 Ширина: 14.6 Глубина: 19.3
Крыша — двускатная, односкатная Ванные: 3 4 Материал стен — деревяный каркас Фасадные материалы: камень, фиброцементный сайдинг, Панели Фундамент — Ленточный Открытые помещения: Терраса, Веранда, Застекленная веранда, Терраса на 2 этаже Окна: широкие окна, панорамные окна Высота дома 7.6

РЕКОМЕНДУЕМ

Проект 2 этажного каркасного дома с панорамными окнами и эркером в современном стиле

Проект современного пассивного двухэтажного дома с панорамным остеклением для узкого участка

Проект современного дома с крытыми террасами для участка с боковым уклоном

Проект двухэтажного дома с двускатной крышей и большими террасами

Приглашаем посетить другой наш сайт Eplan.house, где вы найдете 4000 избранных планов домов со всего мира в различных стилях, а также рекомендации по строительству дома.

Hitech-house © copyright 2017