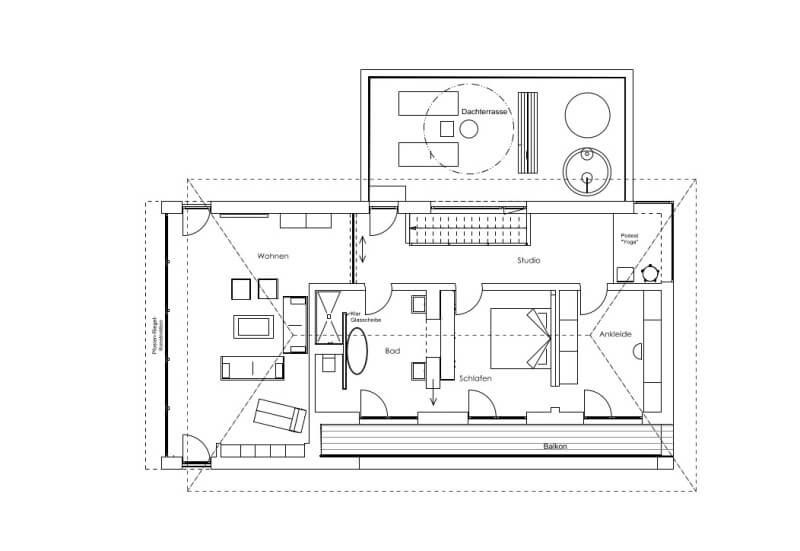
Как в огромный иллюминатор, жители этого дома могут наблюдать природу с консоли второго этажа: изнутри дома хорошо видно окружающий пейзаж через панорамное окно, а солнце будет максимально освещать и обогревать внутреннее пространство.

Очень оригинальный проект дома в современном стиле имеет практичную и интересную планировку. На втором этаже кроме хозяйской спальни с большой ванной комнатой находится огромная и светлая гостиная, а также просторная терраса. Спокойное и умиротворенное место с окружающим природным видом - все это создано на верхнем этаже и конечно же понравится жильцам.
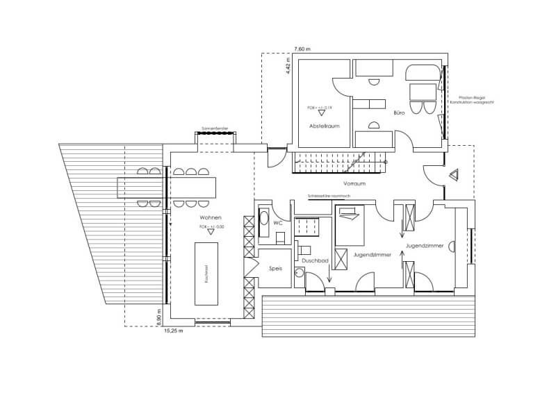
Первый этаж - это входная группа с раздвижными стеклянными дверями, хорошо освещенные столовая и кухня, комфортные кабинет и гостевая комната, множество не обходимых хозяйственных помещений и санузел.
Технология строительства этого дома - деревянный каркас, не требует больших финансовых затрат, а отштукатуренные стены, создавая монолитный внешний вид, увеличивают срок всего строения и не требуют лишних вложений при дальнейшей эксплуатации дома.
Вход в дом

Просторная терраса на втором этаже

Хозяйская спальня с раздвижными дверьми

Гардеробная

Приглашаем посетить другой наш сайт Eplan.house, где вы найдете 4000 избранных планов домов со всего мира в различных стилях, а также рекомендации по строительству дома.