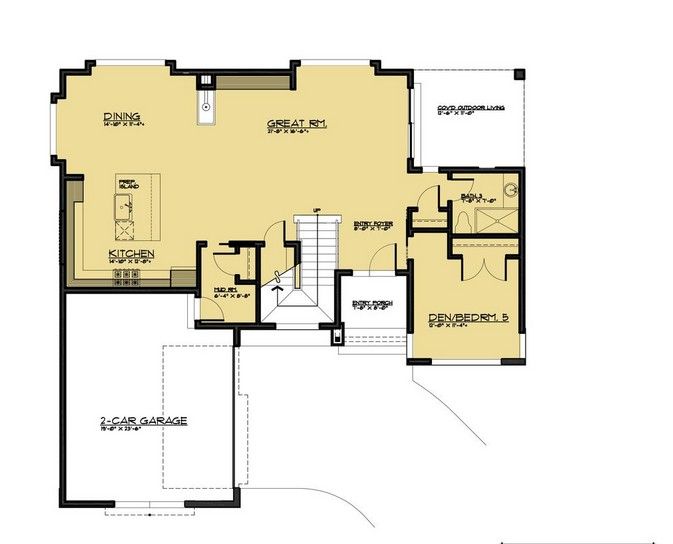
Ο αρχιτέκτονας έχει κάνει εξαιρετική δουλειά δημιουργώντας ένα διώροφο σχέδιο κατοικίας: η μοντέρνα πρόσοψη με τις ευθείες γραμμές συμπληρώνεται από σχεδιαστικές πινελιές εκτεθειμένων τμημάτων τοίχων και πανοραμικών παραθύρων. Ταυτόχρονα, η δίρριχτη στέγη με χαμηλή κλίση δένει απόλυτα με την εντελώς πρωτότυπη ιδέα του συγγραφέα. Η διάταξη του σπιτιού, με μια μπροστινή αυλή, καθιστά το σπίτι πρακτικό και βολικό για τους ενοίκους, καθώς η πρόσβαση στο γκαράζ γίνεται από την μπροστινή πόρτα, η οποία είναι επίσης πολύχρωμη. Ο αριθμός των υπνοδωματίων είναι αρχικά τέσσερα, αλλά ο ιδιοκτήτης του σπιτιού μπορεί να προσθέσει άλλο ένα υπνοδωμάτιο πάνω από το γκαράζ, αν το επιθυμεί. Η διάταξη του καθιστικού και της ομάδας κουζίνας είναι πολύ άνετη και το τζάκι δημιουργεί μια εξαιρετική ατμόσφαιρα θαλπωρής και άνεσης.

Άποψη του σπιτιού από πίσω

Άποψη του σπιτιού στα δεξιά

Κουζίνα με νησί

Σαλόνι με τζάκι

Κύριο υπνοδωμάτιο

Διάδρομος του δεύτερου ορόφου

Αρχικά, το σχέδιο κατοικίας έχει κατασκευή τοίχων με ξύλινο σκελετό, η οποία δεν είναι πολύ κερδοφόρα για τους κατασκευαστές λόγω της σημαντικής αύξησης των τιμών του ξύλου. Ως εκ τούτου, σας συνιστούμε να εξετάσετε την τεχνολογία των τοίχων από οπλισμένο σκυρόδεμα με μόνιμο ξυλότυπο (ICF), χάρη στην οποία το σπίτι σας θα κοστίζει το ίδιο με ένα σπίτι με ξύλινο σκελετό, αλλά θα εξοικονομήσετε πολλά χρήματα στο μέλλον. Όλοι κατανοούν ότι η μονολιθική κατασκευή σημαίνει αξιοπιστία και ανθεκτικότητα. Μην υποτιμάτε τη χρήση σύγχρονου ποιοτικού εξαερισμού - όλοι χρειαζόμαστε καλό αέρα για να διατηρήσουμε την υγεία των αγαπημένων μας προσώπων.