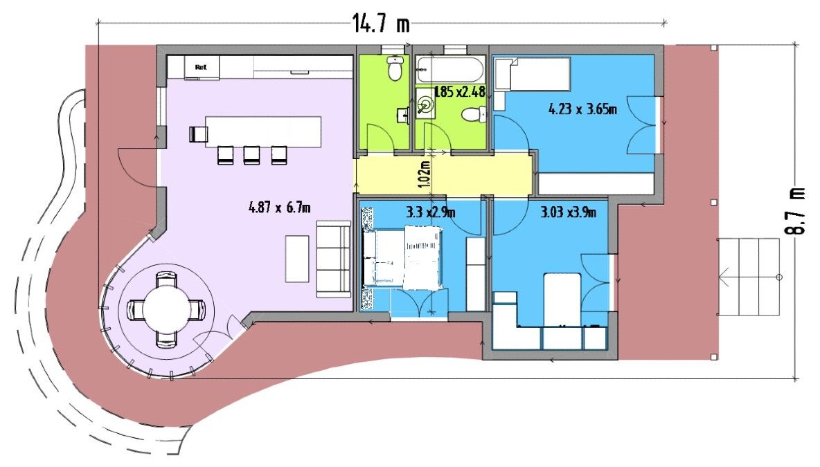
Το παρουσιαζόμενο σχέδιο κατοικίας έχει μικρό εμβαδόν μόλις 88 τ.μ., αλλά διαθέτει διαρρύθμιση και πρωτότυπη εμφάνιση.

Νυχτερινή άποψη του σπιτιού

Δεξιά όψη

Πίσω όψη

Κουζίνα με νησί

Μεγάλο δωμάτιο

Τραπεζαρία

Κύριο υπνοδωμάτιο

Το υπνοδωμάτιο ενός αγοριού

Κρεβατοκάμαρα για ένα κορίτσι

Μπάνιο

Πλυντήριο ρούχων

Οι τοίχοι του σπιτιού είναι κατασκευασμένοι από σκυρόδεμα με ICF, πράγμα που σημαίνει ότι οι εσωτερικοί τοίχοι και η πρόσοψη μπορούν να τελειώσουν με οποιαδήποτε υλικά φινιρίσματος. Το σπίτι δεν είναι πολύ ακριβό στα στάδια κατασκευής, αλλά είναι σημαντικά οικονομικό στην περαιτέρω συντήρηση και χρήση. Σημαντικό είναι ότι ένα τέτοιο σπίτι θα πρέπει να έχει καλό αερισμό, κατά προτίμηση ανακυκλωτικό. Μπορείτε να διαβάσετε σχετικά στο άρθρο για τον αερισμό.