Ένα εξαιρετικά μοντέρνο σπίτι με υπόγειο που ταιριάζει απόλυτα σε ένα επικλινές οικόπεδο. Ο συγγραφέας δημιούργησε μια κυβική πρόσοψη με σαφείς, ευθείες γραμμές και πανοραμικά τζάμια, τονίζοντας τον high-tech χαρακτήρα ολόκληρου του σπιτιού και κάνοντας τον εσωτερικό χώρο γεμάτο φως και διευρύνοντας οπτικά πολλές φορές.

Μπροστινή πρόσοψη

Οπίσθια πρόσοψη

Δεξιά πρόσοψη

Αριστερή πρόσοψη

Μια μοντέρνα κουζίνα

Μοντέρνο σαλόνι

παιδικό υπνοδωμάτιο

Μια σάουνα με μοντέρνο σχεδιασμό

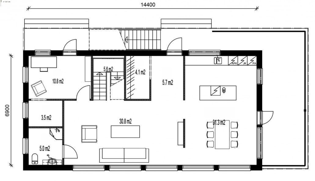
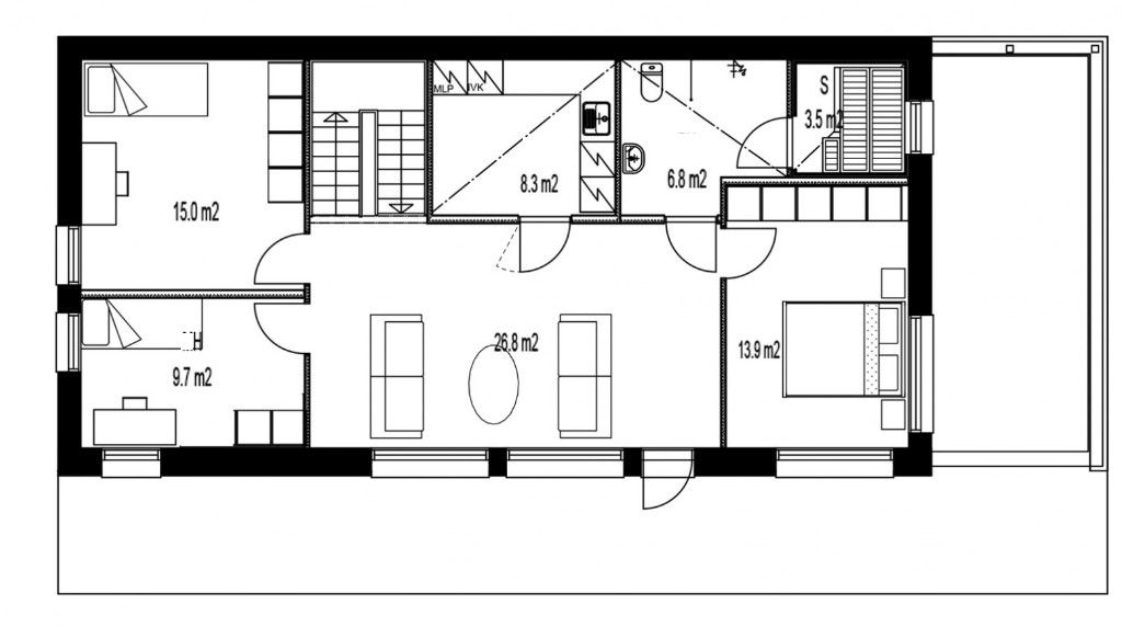
Τρία άνετα υπνοδωμάτια, ένα ενιαίο σαλόνι, μια ευρύχωρη κουζίνα με νησίδα και πολλοί τεχνικοί χώροι θα δημιουργήσουν ένα άνετο περιβάλλον διαβίωσης για την οικογένειά σας. Η παρουσία μιας σάουνας θα είναι ένα είδος μούρου στην τούρτα. Δεν υπάρχουν όρια στις σχεδιαστικές λύσεις για σύγχρονους χώρους διαβίωσης. Οι μονολιθικοί τοίχοι από σκυρόδεμα με μόνιμο ξυλότυπο (ICF) καθιστούν τη δομή του σπιτιού ισχυρή και ανθεκτική. Βασική προϋπόθεση για αυτό το σπίτι είναι ο κατάλληλος αερισμός των χώρων.