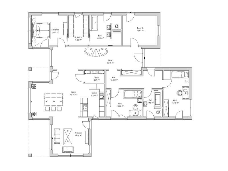
Владельцы этого бунгало делают ставку на современные технологии. Они не только создадут независимую среду обитания, но и энергосберегающие дом. На односкатной крыше будет установлена мощная система фотоэлементов, которая будет снабжать дом электричеством за счет солнечной энергии.

При условии, когда солнечной энергии не хватает, владельцы этого дома могут использовать систему аккумуляторов, поэтому они могут жить в значительной степени независимо от общей электросистемы. Низкая потребность в тепле создается энергосберегающим воздушно-водяным тепловым насосом. Контролируемая вентиляция жилых помещений обеспечивает свежий воздух, который, благодаря рекуперации тепла, также способствует регулированию температуры в доме.
И последнее, но не менее важное, хорошо утеплённые наружные стены способствует максимальному теплотехническому балансу в этом доме. Основу конструкции составляет деревянный каркас, в сочетании с высокоэффективной теплоизоляцией, и это все уже в стандартном исполнении превосходят установленные законом требования к потреблению энергии.








Приглашаем посетить другой наш сайт Eplan.house, где вы найдете 4000 избранных планов домов со всего мира в различных стилях, а также рекомендации по строительству дома.