На первый взгляд этот дом прост и однообразен, но внимательно присмотревшись и изучив планировку, можно найти множество практичных отличий и эксклюзивных дизайнерских решений от других внешне похожих проектов.

1. Фасад представляет собой кирпич темного цвета и в сочетании с окнами и дверьми окрашенных в тон антрацита, отлично смотрится под большими свесами вальмовой крыши.
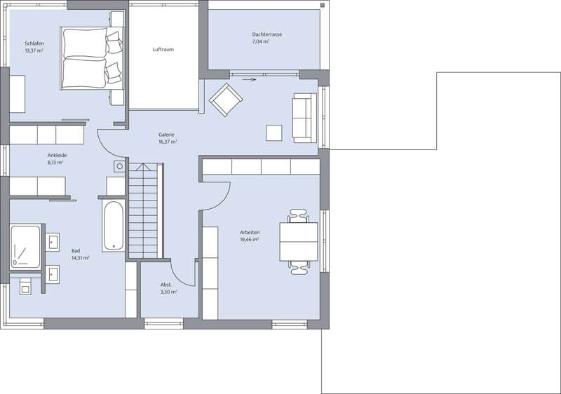
2. Пристроенный с боку гараж на две машины и отдельной мастерской переходящая в закрытую террасу отлично вписываются в общий облик дома.
3. Входная группа с большим остекление и панорамные окна в центре фасада с двух сторон хорошо освещают холлы двух этажей и уютную гостиную, создавая второй свет над ней.
Вот некоторые моменты заслуживающие внимания, все остальное вы можете оценить изучив планировку этого дома. Конечно же этот проект подходит для строительства на участке любой формы, необходимо лишь расположить его учитывая расположения солнечного пути в разное время года, что бы эффективно использовать дополнительное освещение создаваемое таким остеклением.
Особое внимание при строительстве, стоит уделить панорамным окнам на углах дома: расчет балок, позволяющих создать такую красоту, требует от конструкторов и строителей профессионального отношения.
Вид спереди

Столовая объединенная с кухней

Современная кухня

Красивая ванная комната

Приглашаем посетить другой наш сайт Eplan.house, где вы найдете 4000 избранных планов домов со всего мира в различных стилях, а также рекомендации по строительству дома.