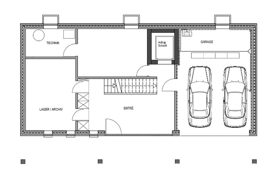
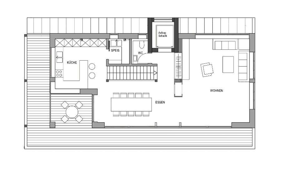
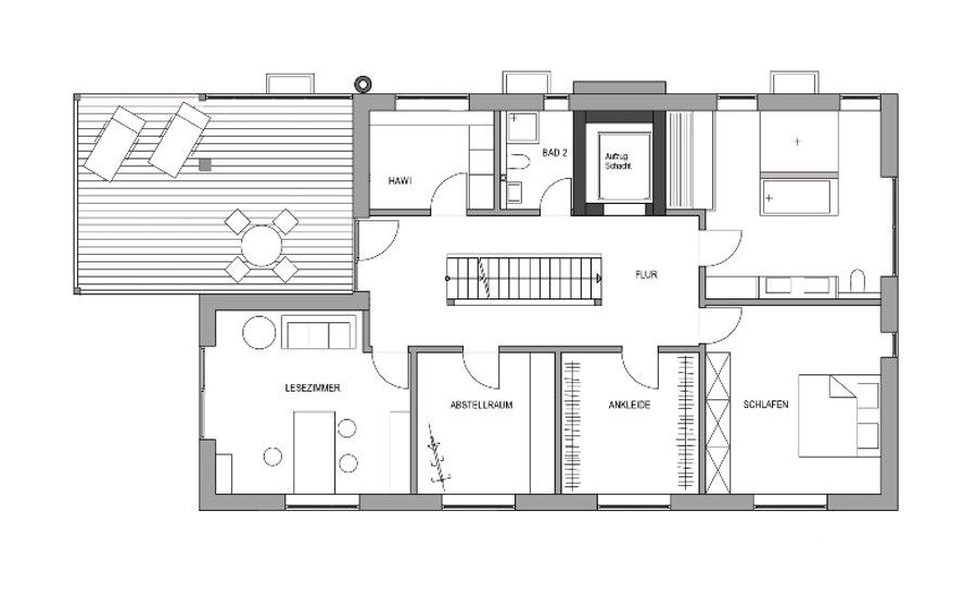
楼层
卧室。
车库。
加热区。 0
1楼广场。 0
2楼广场。 0
房子的建筑类似于一艘海船,这要归功于上层的风格,它是由一个带有美丽栏杆的木质甲板所包围。房子的布局和第二层的天井给人的印象是,你在一艘舒适的海轮上旅行。












这种房屋规划(ICF)和上层大梁的木质框架的结构使房屋能够抵御各种自然灾害,包括地震。 电梯的存在只强调了居住在这样的房子里的便利和舒适。大量的房间使房主可以创建适合不同需求的房间或小屋。决定按照这种房屋规划建造房屋,建筑商应该了解建筑的关键环节:优质的地质勘察和整个室内空间的良好通风。