楼层 2
卧室。 4
车库。 附属车库, 3车位车库, 地下车库
加热区。 367 平米2
1楼广场。 237 平米2
2楼广场。 129 平米2
大量的窗户和可伸缩的推拉门为这个现代住宅计划带来了光线和空间,使户外生活尽可能的舒适。一个低斜的屋顶,由暴露的椽子支撑的深悬垂,可以保护墙壁不受雨水影响。

主层由开放式的公共生活区组成。两扇折叠玻璃门将生活空间延伸到一个有顶的门廊和露台。隐蔽的主卧室有一个带独立浴缸的浴室、厕所和一个大的更衣室。如果你愿意的话,客卧或书房在房子的另一侧,有自己的阳台。
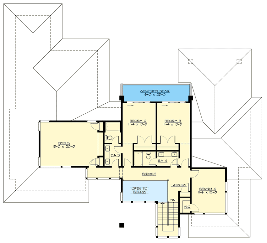
第二层的三间卧室共用两个完全独立的浴室,而从两间卧室可以进入第二层的有顶甲板。车库上方有一个大的奖励房间。主层的双车位车库通向洗衣房和带步入式衣柜和客用厕所的入口大厅。
在下层,有一个可容纳2辆车的串联车库,以及一个供爱好者使用的宽敞的工作室。





